Здам в оренду 156 м2 Київ, вул. Академіка Заболотного, 20а 29 000 грн
Фильтр
Украина
Искать по выбранной стране
Искать по выбранной стране
  • Винницкая область
  • Волынская область
  • Днепропетровская область
  • Донецкая область
  • Житомирская область
  • Закарпатская область
  • Запорожская область
  • Ивано-Франковская область
  • Киевская область
  • Кировоградская область
  • Крым
  • Луганская область
  • Львовская область
  • Николаевская область
  • Одесская область
  • Полтавская область
  • Ровенская область
  • Сумская область
  • Тернопольская область
  • Харьковская область
  • Херсонская область
  • Хмельницкая область
  • Черкасская область
  • Черниговская область
  • Черновицкая область
Хмельницкая область
Искать по выбранному региону
Искать по выбранному региону
  • Виньковцы
  • Волочиск
  • Городок
  • Деражня
  • Дунаевцы
  • Изяслав
  • Каменец-Подольский
  • Красилов
  • Летичев
  • Нетешин
  • Полонное
  • Понинка
  • Славута
  • Староконстантинов
  • Теофиполь
  • Хмельницкий
  • Шепетовка

Здам в оренду 156 м2 Київ, вул. Академіка Заболотного, 20а

№4203924
Создано: 24 октября
Здам в оренду 156 м2 Київ, вул. Академіка Заболотного, 20а Киев - изображение 1
Здам в оренду 156 м2 Київ, вул. Академіка Заболотного, 20а Киев - изображение 2
Здам в оренду 156 м2 Київ, вул. Академіка Заболотного, 20а Киев - изображение 3
Здам в оренду 156 м2 Київ, вул. Академіка Заболотного, 20а Киев - изображение 4
Здам в оренду 156 м2 Київ, вул. Академіка Заболотного, 20а Киев - изображение 5
Площадь: 156м2
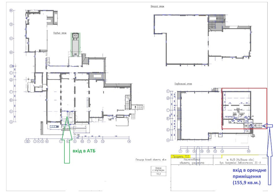
Пропонуємо до розгляду під провадження комерційної діяльності приміщення з окремим фасадним входом, площею (підвальний поверх) 155,9 кв.м. Вхід у приміщення розташований поруч із входом до магазину АТБ. Вхідна група – металопластикові розстібні двостулкові двері.

Є індивідуальний санвузол. Є запас електричної потужності. У приміщенні є система опалення, вентиляції та кондиціювання; встановлено індивідуальний вузол обліку електроенергії та води; підключено пожежну сигналізацію. Перед будинком є ​​парковка. Можливе підключення додаткових зв'язків. У безпосередній близькості представлені різноманітні магазини, відділення банку, місця громадського харчування. Район із активним трафіком. Готові розглянути співпрацю з офісами, салонами краси, ломбардами, зоомагазинами, орендарями, які займаються реалізацією непродовольчої групи товаром та наданням послуг.
№4203924
Создано: 24 октября
Зарегистрируйтесь или авторизуйтесь чтобы оставить комментарий.
29 000 грн
Написать Контакты
Ольга
Был онлайн сегодня 12:54
Вы хотите, чтобы больше людей увидели это объявление?
Продвинуть предложение
Наверх