долгосрочная аренда помещения свободного назначения, здания Харьков, Шевченковский, 830 грн./мес. 830 грн
Фільтр
Украина
Пошук по обраній країні
Пошук по обраній країні
  • Вінницька область
  • Волинська область
  • Дніпропетровська область
  • Донецька область
  • Житомирська область
  • Закарпатська область
  • Запорізька область
  • Івано-Франківська область
  • Київська область
  • Кіровоградська область
  • Крим
  • Луганська область
  • Львівська область
  • Миколаївська область
  • Одеська область
  • Полтавська область
  • Рівненська область
  • Сумська область
  • Тернопільська область
  • Харківська область
  • Херсонська область
  • Хмельницька область
  • Черкаська область
  • Чернігівська область
  • Чернівецька область
Херсонська область
Шукати по обраному регіону
Шукати по обраному регіону
  • Олешки
  • Антонівка
  • Білозерка
  • Берислав
  • Велика Олександрівка
  • Велика Лепетиха
  • Генічеськ
  • Гола Пристань
  • Каланчак
  • Комишани
  • Каховка
  • Нова Каховка
  • Нова Маячка
  • Новоолексіївка
  • Новотроїцьке
  • Скадовськ
  • Таврійськ
  • Херсон
  • Чаплинка

долгосрочная аренда помещения свободного назначения, здания Харьков, Шевченковский, 830 грн./мес.

№4199883
Створено: Учора
долгосрочная аренда помещения свободного назначения, здания Харьков, Шевченковский, 830 грн./мес. Харків - зображення 1
долгосрочная аренда помещения свободного назначения, здания Харьков, Шевченковский, 830 грн./мес. Харків - зображення 2
долгосрочная аренда помещения свободного назначения, здания Харьков, Шевченковский, 830 грн./мес. Харків - зображення 3
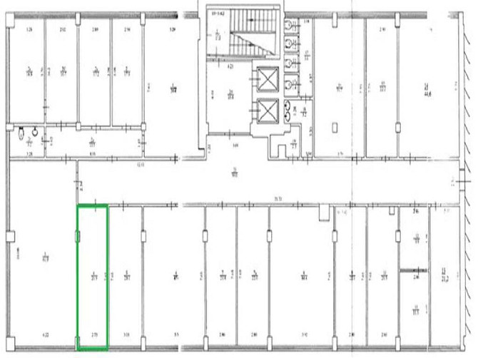
Площа: 20.9м2
as1006179. as1006179. АБ УКРГАЗБАНК оголошує про передачу нерухомого майна в оренду на аукціоні, а саме щодо укладання договору оренди (тимчасового платного користування) нежитлового приміщення №4 (кабінет), загальною площею 20,9 кв.м, що знаходяться на другому поверсі нежитлової будівлі літ. А-8, за адресою: м. Харків, вул. Шатилова дача, 4, відповідно до Схеми меж оренди.
Стартова орендна плата, грн./міс - 830,78 грн., з ПДВ
Детальніше з умовами укладання договору оренди можна ознайомитись за посиланням:
https://prozorro.sale/auction/RLE001-UA-20251013-38457/
помещения свободного назначения, здания, кількість приміщень: 1, ділянка: 1.00 сот
№4199883
Створено: Учора
Увійдіть або зареєструйтесь щоб залишити коментар.
830 грн
Повідомлення Контакти
Був у мережі сьогодні 04:32
Ви хочете, щоб більше людей побачили це оголошення?
Просувати оголошення
Догори